Yosef Ha'Nasi | Tel Aviv

62 sq.m Appartement​

Renovation

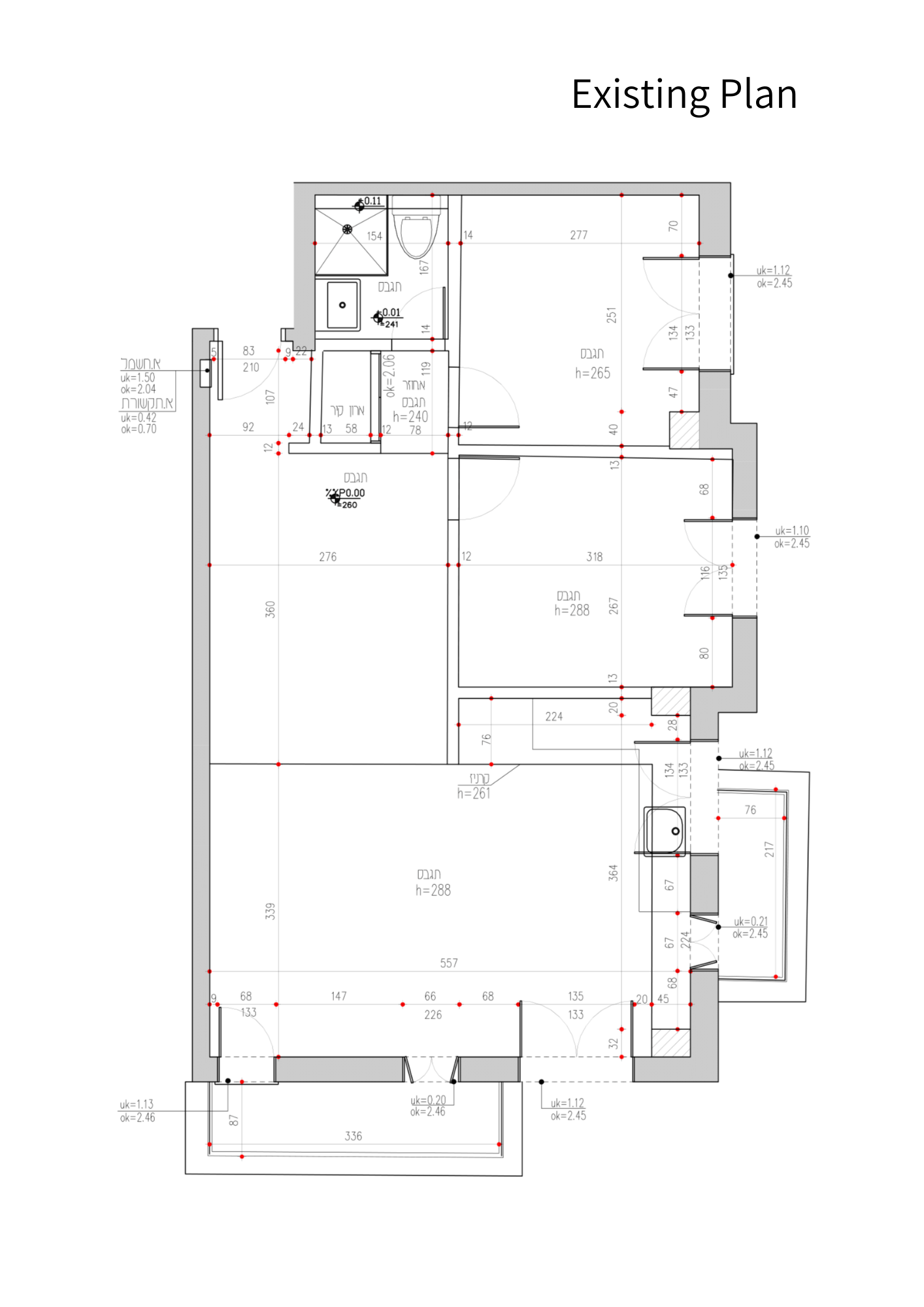
Existing Plan
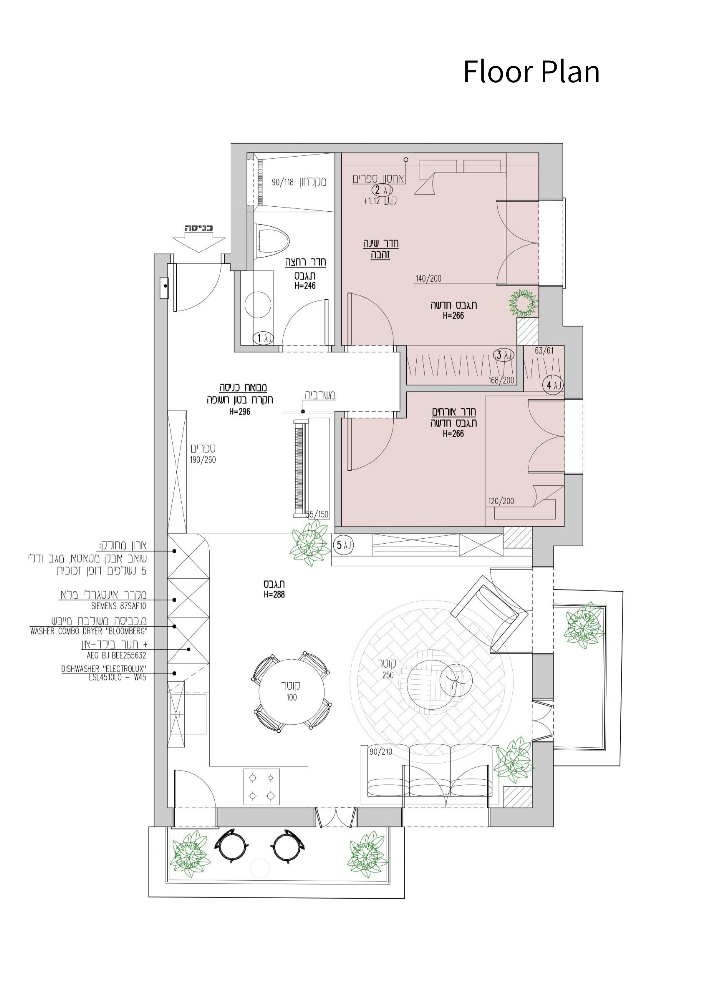
Floor Plan
After
Before
After
Before
After
Before
After
Before
After
Before
I bought a small apartment in the heart of Tel Aviv and inquired for someone to help design the space to suit my needs. I hadn’t known the extent of this fateful and constitutive event. I chose Tslil out of 6 experienced professionals in the field, based to rational considerations, and in particular, the sense of trust we acquired from our very first meeting. We set out for an unimaginable adventure of scope and quality. I received 3 intervention floor plans. Each floor plan offered a new and surprising perspective as to what may occur within the walls of this ancient and preserved building. Subsequently came the phase of appointing the contractor, who eventually executes the chosen floor plan. In the course of time, there may be a deviation between the planning and the execution which can be unpredictable at times, and Tslil, being the very professional designer she is, knew to focus on the main point at every step of the process. Her ability to be profoundly attentive to my desires, offering practical options based on general ideas while patiently waiting for me to make a decision, was one of her exceptional attributes. Another quality of hers is the ability to propose a variety of architectural ideas in order to creatively and uniquely utilize the tiny area and turn it into something pleasant and spacious. It was amazing to see how the design apparatus was organized into concrete items. In retrospect, I now know how to recognize the devotion to tiny details, the dedication, the accuracy and the capability to stand assertively while working with professionals in the field. With excellent ability to focus and remarkable implementation, Tslil walked me hand in hand through the field of endless possibilities. The renovation process began about two weeks prior to the set of Covid 19, accentuating fear around the globe. I was forced to lock myself in my dormitory with strict instructions from the doctor, and Tslil spontaneously filled my place, shared and took photos during every step of the way, all so everything is ready at the time of the move. On that day, and with tremendous wisdom and sensitivity, Tslil was utterly devoted to arranging the apartment with a magnificent vibe. A huge thank you for all of this. I was privileged to work with you, Tslil, during this stage in my life.

TSLIL BAR

INTERIOR DESIGN STUDIO

  This site created with ❤ by ITM web solutions