Maze | Tel Aviv

72 sq.m Appartement

Renovation

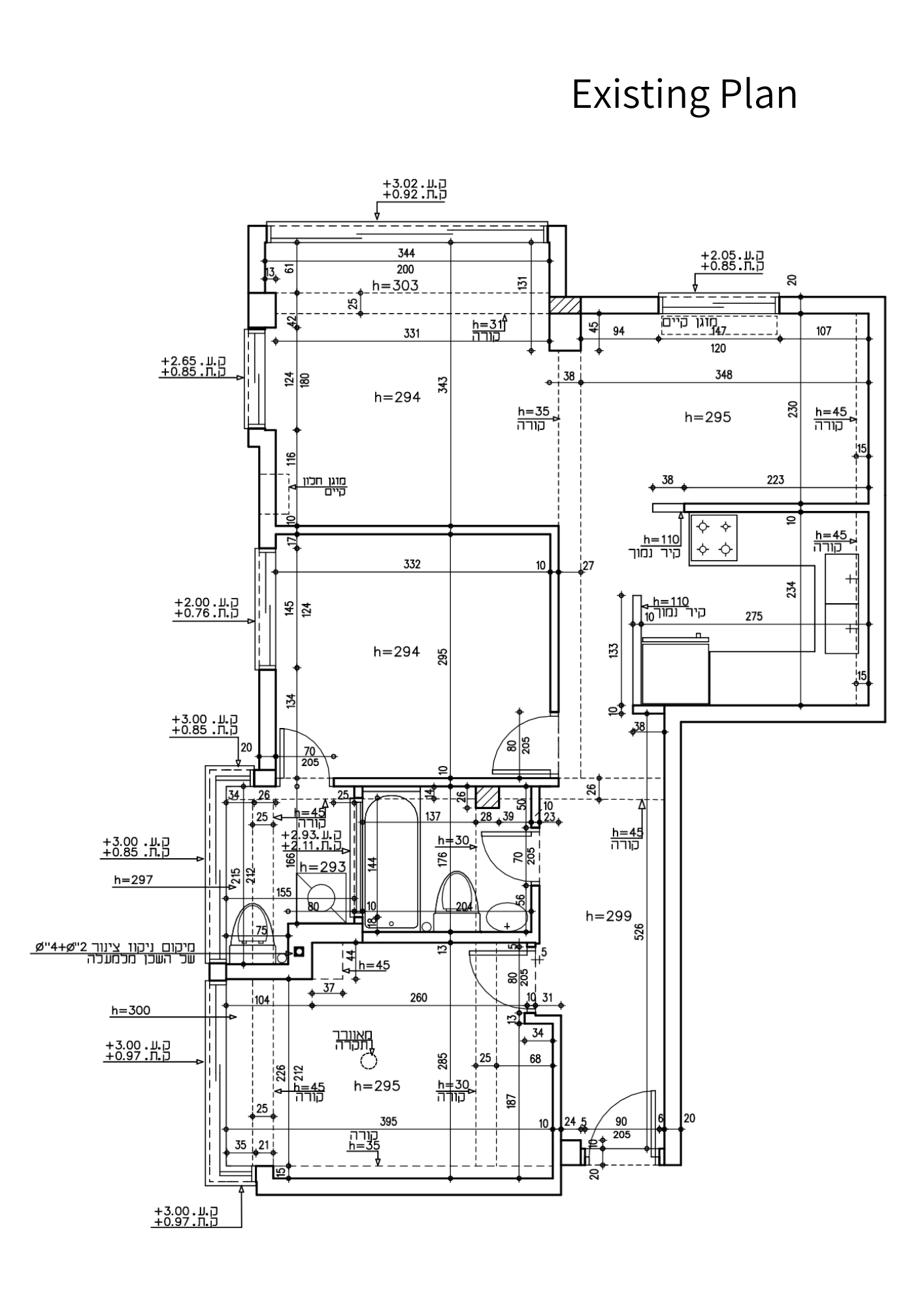
existing plan
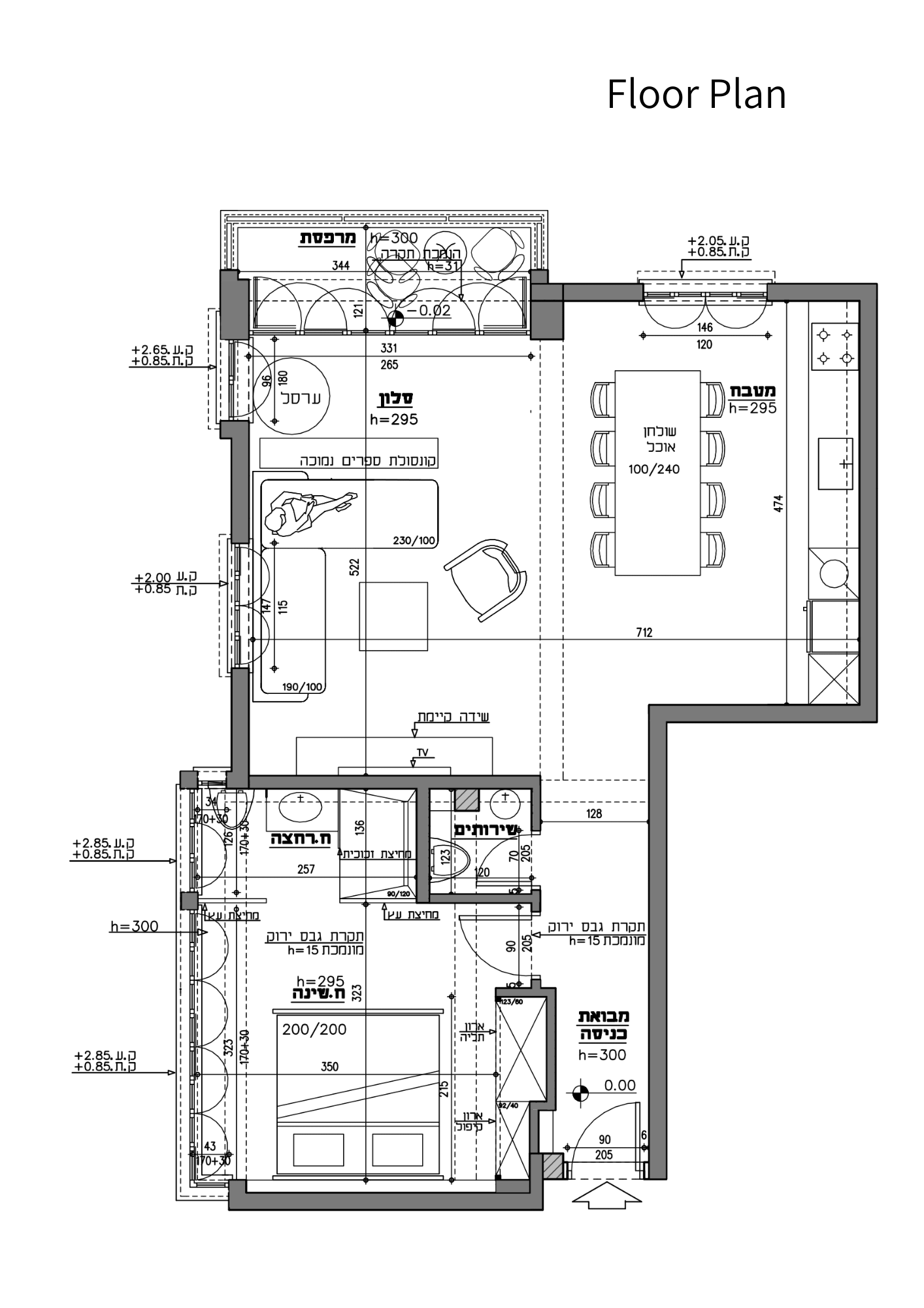
flooe plan
After
Before
After
Before
After
Before
After
Before
After
Before
In 2015 we remodeled a 72 sqm apartment in Tel Aviv and hired Tsill as our designer. The project was not easy as we live abroad and almost everything was done in remote control. That's also why Tsill's role was a lot more than designed but basically also the project manager, in charge of all the purchases and coordinating all the different providers and contractors. Working with Tsill was a real pleasure and we loved the results

TSLIL BAR

INTERIOR DESIGN STUDIO

  This site created with ❤ by ITM web solutions